東大阪市・八尾市中古マンションナビ

東大阪市と八尾市の中古マンション売買専門店

06-6743-7400

営業時間/9:00 ~18:00
定休日/火・水曜定休

アルス八尾本町

  • ペット可

アルス八尾本町

販売価格 2,690万円
住所 八尾市本町5丁目8-15
交通 近鉄大阪線 『近鉄八尾』 駅 徒歩 6分
ズバ評
合計
86
価格
18
間取
17
管理
13
リフォ
ーム
20
向階
18

そんちょうさんコメント

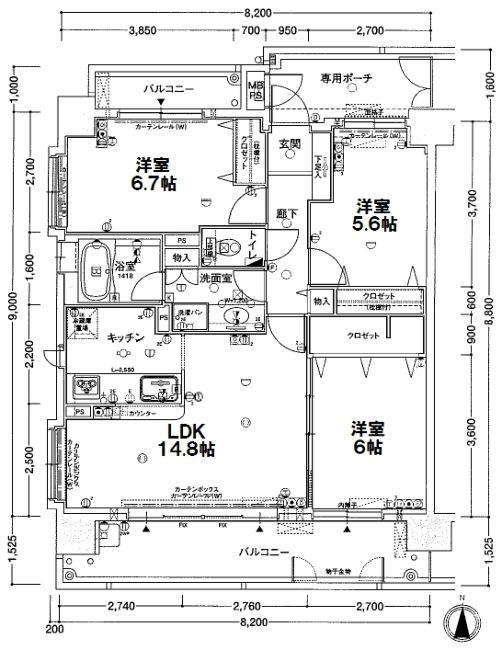
2025年12月度ご成約いただきました。 (成約済み)◆ 2010年からのデータによると、売り物件はこの部屋で6件目です。29戸しかありませんので、めったと売りに出ませんね。管理費と積立金は、割高です。専用ポーチは独立した空間が得られる反面、門扉の開け閉めは面倒かもしれません。洗面室とお風呂はゆったり広めです。洋室6.7帖とリビングには西窓があるため、夏場は西日対策の遮光カーテンなどが必要でしょう。その反面、西窓は風通しが良く、換気もしやすいでしょう。全室に、エアコンが設置可能です。

写真

室内写真

物件詳細

物件番号
15422
マンション名
アルス八尾本町
所在地
八尾市本町5丁目8-15
交通 ※
近鉄大阪線 『近鉄八尾』 駅 徒歩 6分
価 格
2,690万円
専有面積
72.96 m2 ( 22.25坪 )
バルコニー/向き
15.88 m2 南
所在階
10 階建の4 階部分
部屋の現状
空室(見学可)
引渡し時期
相談
管理費
14200円
修繕積立金
23350円
ペット飼育
可 (規約あり)
駐車場状況
駐車場月額
9,000円~10,000円
建物構造
鉄筋コンクリート造
建築年月
2003 年(平成15年)2 月
総戸数
29 戸
管理会社
東急コミュニティ
管理形態
通勤
学校区
八尾小・成法中
取引態様
仲介
そんちょうさん
のズバコメ
2025年12月度ご成約いただきました。 (成約済み)◆ 2010年からのデータによると、売り物件はこの部屋で6件目です。29戸しかありませんので、めったと売りに出ませんね。管理費と積立金は、割高です。専用ポーチは独立した空間が得られる反面、門扉の開け閉めは面倒かもしれません。洗面室とお風呂はゆったり広めです。洋室6.7帖とリビングには西窓があるため、夏場は西日対策の遮光カーテンなどが必要でしょう。その反面、西窓は風通しが良く、換気もしやすいでしょう。全室に、エアコンが設置可能です。
マンション設備
  • 電気
  • 上水道
  • 下水道
  • 都市ガス
  • 防犯カメラ設置
  • ゴミ置き場
  • 自転車置場
  • バイク置場
  • オートロック
  • 管理人室
  • 集合ポスト
  • 宅配ボックス
  • エレベーター
  • ペット飼育可
  • インターネット利用可
室内設備
  • 玄関ポーチ・アルコープ
  • 玄関門扉付
  • 下駄箱
  • 面格子
  • 網戸
  • 物入れ
  • クローゼット
  • バリアフリー
  • フローリング
  • クッションフロア
  • モニター付きインターホン
  • エアコンコンセント
  • カーテンレール
  • コンセント
  • テレビコンセント
  • 電話差し込み
  • インターネット接続可
  • 分電盤
  • 手洗付便器
  • タオル掛け
  • ペーパーホルダー
  • 温水洗浄便座
  • トイレ換気扇
  • トイレ内収納又は棚
  • 洗濯機用防水パン
  • 洗面化粧台
  • 三面鏡
  • シャワー付水栓
  • 浴室乾燥暖房機
  • 風呂追い焚き
  • システムキッチン
  • カウンター付キッチン
  • 人造大理石カウンター
  • ガス3口コンロ
  • レンジフード
  • 食器洗い乾燥機
  • 浄水器
  • 給湯器
  • バルコニー
  • 物干金物
  • 防水コンセント
  • スロップシンク
リフォーム履歴
◎2025年(令和7年)9月末 システムキッチン・ユニットバス・洗面化粧台・給湯器を新調、クロス貼替、フローリング貼替
補足・備考
専用ポーチ5.95㎡、アーケード維持管理費:月900円、固定資産税(2025年度):112,169円、南西角部屋 ◆価格変更:2,790万円→2,690万円
情報更新日
2025/12/25

◎不動産情報サイトや他社のホームページ掲載物件でもお気軽にご相談ください。

住宅ローンシミュレーション

このマンションをローンで買うと

月々 円です

数字を入替えて計算してみましょう

借入期間
金利

※頭金・ボーナス払い0円での返済金額です。変動店頭金利2.475%から1.85%優遇で表示。
お客様のご要件により金利優遇や借入期間は異なります。

【分数】について

分数は出来る限りマンションの玄関から駅の改札や出入り口に近いところで測っています。 よってパンフレットなどの表示分数と異なる場合があります。尚、徒歩で歩くことを基準にしているので、 車の通行が困難な場所もありました。坂道や階段は分数に考慮していません。

【管理形態】について

【住込み】 通常週5日以上の勤務で管理員がマンション内に居住
【通勤A/24時間】 24時間交代で管理員又は警備員が勤務
【通勤B/週5日以上】 1週間の内5日以上管理員が通勤勤務
【通勤C/週4日以内】 1週間の内4日以内管理員が通勤勤務
【通勤】 管理員が通勤勤務
【巡回】 指定日に一定時間管理員が通勤勤務
【無人】 管理員の勤務はなく清掃業務のみやカメラ等でセキュリティ管理
【自主管理】 管理業者に委託せず業務は住民で分担。保守点検は専門業者に委託
【勤務時間】 9時~17時が一般で、午前中のみや曜日よって時間が異なることもあります。

【ペット】について

将来飼育可が不可に、不可が可に替わることがあります。

【設備料金】について

駐車場、バイク、自転車置場の台数や料金は変わることがあります。

なかなかマンションが見つからない!とお思いの方、
そんなときは「希望条件登録サービス」をご利用ください。
マンションナビが登録くださった内容に一致した情報が入り次第ご連絡いたします。

希望条件登録サービスの
申し込みはこちら

こんな人が
メンバー登録しています

  • 初めて中古マンションを買う人
  • ゆっくり探している人
  • 物件のデメリットも知りたい人
  • 自分に合った物件を見つけたい人

全力でサポートします!